Строительство сборного каркасного дома в Германии за 2 дня
Автор статьи: Антонина Сухар, архитектор компании Profikarkas
Каркасно-панельные дома в Германии отнюдь не редкость. Эта история о том, как строился один из таких домов. Ее автор — хозяин дома. Мы ее переписали с его слов.
Дом построен по нашей технологии, вернее мы используем такую же технологию, как и та, что описана в этой статье, хоть и строили не мы :-).
"Изучая в интернете, что такое сборные дома, как люди строят даже из глины и палок, я решил выложить рассказ о собственном строительстве. Почти все работы выполняла фирма, что не очень бюджетно по отечественным меркам, но довольно приемлемо для Германии. Основная масса родственников далеко, а я все время занят работой, поэтому я плачу, а фирма строит. Проект каркасного дома был рассчитан на немецкие нормы энергоэффективности. Подрядчиком при строительстве стала известная в Германии компания с 60-летней историей. В общем, я решил не рисковать!

Начало строительства пришлось на 10 октября, а уже в декабре мы заехали в каркасный дом! Сроки сборки коробки заняли всего два дня. В остальное время выполнялась отделка.
Вот таким наш дом выглядел в красивом проспекте:

Планировка первого этажа. Зона гаража выделена красным.

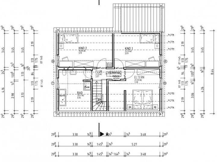
Расположение комнат на втором этаже. Общая площадь где-то 160 м2.

На строительстве стандартного фундамента не буду подробно останавливаться

Готовым он имел вот такой вид

С началом раннего октябрьского утра на площадке было уже много техники

Привезли готовые стены. В них уже были окна, розетки и гипсокартон с внутренней стороны. Вот они пошли, преимущества сборных домов)


Поехали!

Между домами кое-как поместился кран

Зимний сад доставили также в сборке

Это обзор всего участка в 6 соток с угла

Перед началом работ я решил угостить бригаду вкусной едой и хорошим кофе. Они остались очень довольны и отлично работали

А это первая стена

Да-да, прямо по принципу карточного домика


Одни устанавливают, другие соединяют

А прораб контролирует)

Работа спорится

Закрепляем!


Длина стены почти 11 метров!

А вот и солнце нам в помощь вышло

Курение в доме запрещено. Соблюдение этого правила контролируется

Я съездил на обед, а тут уже в процессе второй этаж


И чердак

Начинает вырисовываться дом

С улицы это выглядит так

С зимним садом

Соседи набрались терпения

Решил прогуляться внутри. Будущий холл

Монтаж зимнего сада начался

Собираем

И так

Еще

А это если смотреть с улицы

Столовая изнутри

Каминная труба

Гостиная

Прихожая

Это вид снаружи

Кроем крышу на второй день. Погода шепчет!

Кто-то монтирует, а кто-то переносит материалы внутрь

Это ванная

Другой ракурс

Продолжение каминной трубы на втором этаже

Будущая детская

И это она же

А это уже спальня

Из окна вот такой вид

Участок из окна. Соседи построились раньше нас на полгода

Это чердак, хоть и не высокий – всего 0,8 м, зато вместительный!

Облицовка каркасного дома на кровле черепицей выглядит прекрасно


Столовая, если смотреть на неё из гостиной

Все, что вы видите, мы успели всего за два дня. Дальше велись только отделочные работы


Вид на зимний сад

Такой обзор на гостиную из столовой

Установили временную лестницу

В ванной все готово для устройства стяжки

Вентиляционные трубы повсюду


Монтаж теплых полов

Так выглядела отделка каркасного дома через пару недель

А это вид с улицы

Разводка напольного отопления

Сделали зонирование. Рядом с окном трубы уложены чаще

Через месяц дом имел такой вид

Дочка радуется)

Панорама с улицы

Кафель в ванной

Снаружи полным ходом готовим фундамент для гаража

Можно ставить

Готовый туалет на верхнем этаже

И ванная

Начали установку лестницы

Монтаж ступеней

А вот обои и укладку пола я решил взять на себя

Мне помогал брат. Справились за два дня. Решил использовать шпонированный плинтус. Он отлично сочетается со всеми покрытиями и имеет кабель-канал

Это я, довольный

Работа кипела до ночи

На чистовую шлифовку потолков и стен ушло две недели. Они были зашлифованы грубо

Спальня начала обретать законченный вид

Наша ванная

В этом году было очень много снега, что для Германии нетипично

тоскливо

так выглядит каркасный дом зимой с участка

когда наступила весна, пришло время заняться террасой и газоном


засыпаем шлак

перекопал участок

отличный помощник!

Может, посадить картошку? :-)

Очень много камней было… Посеяли траву

Всходит не очень равномерно

Сорняков пока больше

А вот так газон выглядит через месяц

Мой каркасный дом внутри
Вот так выглядит гараж. Он стальной, утепленный. Пришлось взять такой, ведь шириной он должен был быть не больше 3,5 м.

Кухня выглядит вот так

И так

А это гостиная

Обеденная зона

Двоюродный брат помогал с устройством террасы

Выставили бордюры



За два дня все было готово. Очень устал

Так выглядит уже готовая терраса.

Покрытие выполнено из древесно-полимерного композита

Сегодня это выглядит так
Планирую сделать над террасой крышу

Наш газон

Вот и всё!"

По материалам http://ribalych.ru/



