- Общие данныеПараметры
- Интерьеры
- Стоимость строительства
- Почему мы не строимиз sip панелей
-
Export price
-
Часто задаваемыевопросы
| Стоимость домокомплекта от | 2 314 994 грн. Подробнее 15.01.2022 |
| Подвал | отсутствует |
| Площадь застройки | 125 m2 |
| Кубатура | 514.5 m3 |
| Высота | 8.35 m |
| Угол наклона кровли | 22° |
| Площадь крыши | 154.9 m2 |
| Минимальные размеры участка | шир. 20.14m × длина 17.84m |
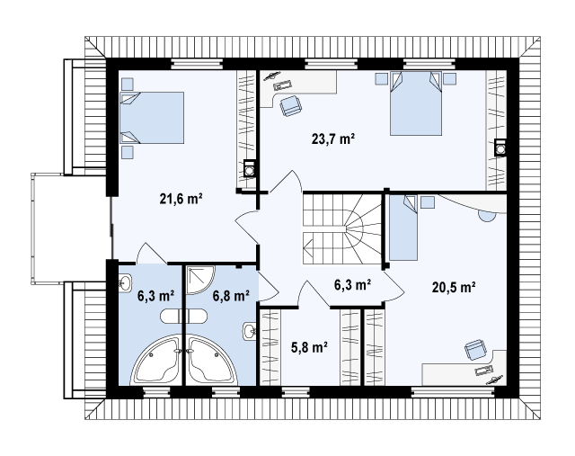
Проект Zx29 Просторный двухэтажный дом элегантного современного дизайна с гаражом
Дома каркасные под названием Zx29 отличаются особым простором внутренних помещений и дизайном в стиле современного минимализма. Несмотря на это дом имеет домашний вид благодаря охристой цветовой гамме и широким окнам.
Достоинства проекта Zx29:
- Коттедж предусматривает уютную террасу и пристроенный к стене камин.
- Дневная зона выполнена в виде открытого пространства.
- Функциональности дому придает отдельная ванная и еще одна спальня на первом этаже.
- Каркасная пристройка к дому спланирована для гаража и небольшой кладовой.
- Второй этаж полностью заняла ночная зона, в которой нашлось место для трех уютных спален, вместительной гардеробной и санузла.
- Главная спальня этой зоны оснащена собственной ванной и выходом на балкон.
Каркасные дома под ключ, построенные по этому проекту, подарят своим хозяевам максимум комфорта не только во время проживания, но и во время строительства.
Стоимость строительства дома Zx29
- Мы изготавливаем на заводе и монтируем каркасно-панельные дома с утеплением из минеральной ваты.
- Мы работаем по всей Украине и Европе.
- При производстве и монтаже домов мы соблюдаем требования Института Пассивного Дома г.Дармштад (Германия) (минимизация тепловых мостов, паронепроницаемость конструкций).
"под ключ"
с монтажом
отделка
245 мм
257 мм
257 мм
- наружный утеплитель 50мм
- деревянный каркас из СЕ сертифицированной констукционной древесины KVH сечением 60 * 140мм с минераловатным утеплителем 140мм
- ОСБ 12мм
- паробарьерная пленка
- внутренний слой утеплителя 40 мм с каналами для разводки электричества
- наружный утеплитель 50мм
- деревянный каркас из СЕ сертифицированной констукционной древесины KVH сечением 60 * 140мм с минераловатным утеплителем 140мм
- ОСБ 12мм
- паробарьерная пленка
- внутренний слой утеплителя 40 мм с каналами для разводки электричества
Стоимость фундамента составляет 2200-2500 грн./м2 общей площади дома, дополнительно к указанной стоимости строительства.
Обязательные работы
просчитываются дополнительно согласно ТЗ, составленного с заказчиком:
- подготовительные работы на участке,
- земляные работы,
- скважина, септик,
- доставка домокомплекта, аренда техники, лессов для монтажа домокомплекта.
Дополнительные опции
согласовываются и просчитываются индивидуально:
- дымоходы и камин,
- входные навесы, террасы, перголы,
- дополнительная звукоизоляция от ударного шума,
- внутренняя лестница,
- инженерное оборудование в доме,
- ограждение и пол балконов,
- мансардные окна.
House building cost Zx29
Housekit with installation including windows, roof, external insulation ready for facade works
Housekit with installation + facade works
Housekit with preparation for interior finishing works
- 52mm wood fiber external insulation
- wood frame from CE certified С24 construction wood studs KVH 60*140mm with stone wool insulation 35kg/m3
- OSB 12mm
- vapour barrier film
- 40mm wood fiber internal insulation with channels for electricity
- 52mm wood fiber external insulation
- wood frame from CE certified С24 construction wood studs KVH 60*140mm with stone wool insulation 35kg/m3
- OSB 12mm
- vapour barrier film
- 40mm wood fiber internal insulation with channels for electricity
wood roof trusses with nailed plates Mitek (www.mitek.de) OR
wood frame from CE certified C24 construction wood beams KVH 60*200mm.
Wood battens for tiles and roof membranes are included (delivered loose)
Roof parapets for flat roofs (if applicable) consist of
- OSB 12mm
- wood frame from CE certified construction wood studs KVH 60*100mm
- 52mm wood fiber external insulation (delivered loose)
wood roof trusses with nailed plates Mitek (www.mitek.de) OR
wood frame from CE certified C24 construction wood beams KVH 60*200mm.
Wood battens for tiles and roof membranes are included (delivered loose)
Roof parapets for flat roofs (if applicable) consist of
- OSB 12mm
- wood frame from CE certified construction wood studs KVH 60*100mm
- 52mm wood fiber external insulation (delivered loose)
- OSB 22mm
- wood frame from CE certified C24 construction wood beams KVH 60*200mm
- acoustic glass wool insulation Isover Profi 100mm (delivered loose)
- Wood battens 30x50mm (delivered loose)
- OSB 22mm
- wood frame from CE certified C24 construction wood beams KVH 60*200mm
- acoustic glass wool insulation Isover Profi 100mm (delivered loose)
- Wood battens 30x50mm (delivered loose)
Windows installation according to EU energy-efficient standards (triple protection).
- Color windows on request, - PVC windows with window frame 85mm and U = 0.85W/K*m2 on request Dark grey (Antracite) or white outside and white inside PVC energy efficient windows with triple glass 44mm (4i - 16 - 4 - 16 - 4i) and window frame 70mm. U window = 1.2 W/K*m2.
Windows installation according to EU energy-efficient standards (triple protection).
- Color windows on request, - PVC windows with window frame 85mm and U = 0.85W/K*m2 on request ?
PVC membrane with XPS slope insulation 50-150mm for flat roofs (the most durable solution for flat roofs)
PVC membrane with XPS slope insulation 50-150mm for flat roofs (the most durable solution for flat roofs)
- ceramic tiles on facade on request - wood siding on facade on request Finish plaster (two colors) on walls - ceramic tiles on facade on request - wood siding on facade on request ?
Metal copings on parapet walls for flat roofs Dark grey (antricite RAL7024) or white PVC overhangs with metal planks installation on fascia under gutter for pitched roofs OR
Metal copings on parapet walls for flat roofs ?
IMPORTANT NOTE
For housekit installation customer has to provide:
- autocrane 30-60t
- construction light scaffolding (like for facade works) around house
- electricity 220-240v 5kw
- toilet at construction site
- solid (gravel or asphalt) road for trucks to construction site
- appartment 1km around construction site with kitchen and 6 separate beds for construction team
DELIVERY COST
~70m2 of housekit / truck + sometimes (depends on total house area) additional 1 truck for things you want to buy additionally to Housekit set #1 (facade materials, plasterboard for ceiling, garage door, additional insulation, etc). Cost of 1 truck is ~1eur/km on land + 350-500euros for customs agency fee and insurance + cost of ferry if it is needed for delivery.


Видео
Оснащение дома
Видео о монтаже
Этапы строительства
Печать
Порекомендовать




